MAHARERA Registration No. P51900002722 | Also available at website: maharera.mahaonline.gov.in

The South Bay, Hughes Road, South Mumbai - A Project By Mesacon Group & Triumph Realty

The Premiere Suites

4BHK DUPLEX. 9TH TO 20TH FLOOR. 2207 SQ FT. CARPET AREA.

The above images are 3D renders of the actual rooms. They are indicative of the aesthetics and décor and are not liable to be provided by the developers. Only bare shell residences will be available on sale.

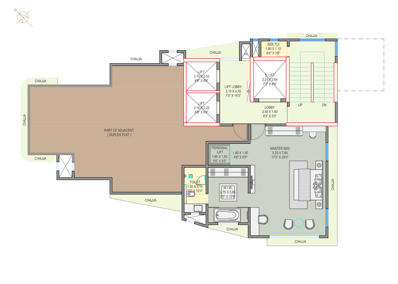
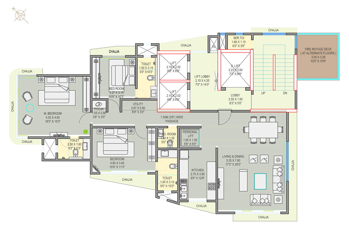
These luxurious 4 bedroom duplex apartments are spread across 2207 sq ft. carpet area. Each of them offer a beautiful view of the Queen’s Necklace, the lush green Hanging Gardens, the Babulnath Mandir and the old world Parsi colony. These suites offer a large living area coupled with a dining space besides a large kitchen, a puja room, powder bath, utility space and luxurious bedrooms at the lower level. Each of these Suites come with a personal home elevator connecting the lower level to the upper. The specially designed master bedroom at the upper level offers complete privacy and a picturesque view of the Arabian Sea. The master bedrooms are incredibly grand and cover a carpet area of approx. 645 sq ft. True to its name the expanse of the room offers space for a super king sized bed attached with a very beautiful walk in wardrobe. The jacuzzi by the window epitomizes luxury to its fullest. These duplexes are alternatively spread out over levels 9 to 20. Residents of these suites also have the entire lift lobby space available to themselves.

The Living Room 515 Sq ft.

The furniture shown in the layout is only indicative. Only bare shell residences will be available on sale

Lower level - Floor Plan

The Premiere Suites


The furniture shown in the layout is only indicative. Only bare shell residences will be available on sale.

Lower level - Isometric View

The Premiere Suites


The furniture shown in the layout is only indicative. Only bare shell residences will be available on sale.

Upper level - Floor Plan

The Premiere Suites


The furniture shown in the layout is only indicative. Only bare shell residences will be available on sale.

Upper level - Isometric View

The Premiere Suites


The furniture shown in the layout is only indicative. Only bare shell residences will be available on sale.

Download E-brochure

Thank You for Your Interest
in THE SOUTH BAY

Additional information is available upon request. Please register your interest here, and we will contact you shortly.

Email me the E-Brochure.