MAHARERA Registration No. P51900002722 | Also available at website: maharera.mahaonline.gov.in

The South Bay, Hughes Road, South Mumbai - A Project By Mesacon Group & Triumph Realty

The Royale Suites

4 BHK DUPLEX. 9TH TO 20TH FLOOR. 2429 SQ FT. CARPET AREA.

The above images are 3D renders of the actual rooms. They are indicative of the aesthetics and décor and are not liable to be provided by the developers. Only bare shell residences will be available on sale.

These lavish 4 bedroom duplex apartments are spread across 2429 sq ft. carpet area. These suites offer a very grand and enviable sea facing living room of over 650 sq ft. that overlook the Queen’s Necklace, lush green Hanging Gardens, the Babulnath Mandir and the old world Parsi colony. The large kitchen with its connected store and utility space is sure to bring out the chef in you, while the well placed powder bath and luxurious bedrooms highlight the finer nuances of the design. Each of these suites come with a personal home elevator connecting the lower level to the upper. The lower level houses a very beautifully designed spacious master bedroom spread over 520 sq ft. carpet area with a big walk in wardrobe and bath. Residents of these suites also have the entire lift lobby space available to themselves. These duplexes are alternatively spread out over levels 9 to 20. These suites can easily be converted to 5BHK to accomodate larger families.

The Master Bedroom 520 Sq ft

The furniture shown in the layout is only indicative. Only bare shell residences will be available on sale.

Upper level - Floor Plan

The Royale Suites


The furniture shown in the layout is only indicative. Only bare shell residences will be available on sale.

Upper level - Isometric View

The Royale Suites


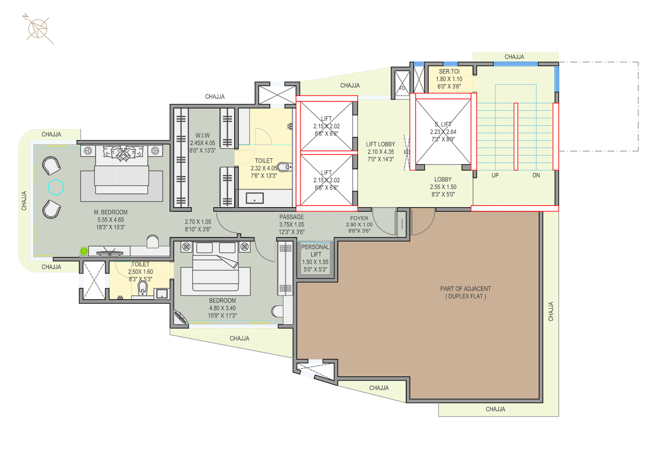
The furniture shown in the layout is only indicative. Only bare shell residences will be available on sale.

Lower level - Floor Plan

The Royale Suites


The furniture shown in the layout is only indicative. Only bare shell residences will be available on sale.

Lower level - Isometric View

The Royale Suites


The furniture shown in the layout is only indicative. Only bare shell residences will be available on sale.

Download E-brochure

Thank You for Your Interest
in THE SOUTH BAY

Additional information is available upon request. Please register your interest here, and we will contact you shortly.

Email me the E-Brochure.